Projects.

Building for the Future: Embracing Sustainable Construction Practices

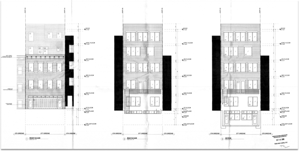
277 Greene Ave.

9,000 S.F.

New Building

5 Stories
Commercial Stores / Mix Use

D. U.

6

Build with us

We provide solutions to fit all your needs