Projects.

Building for the Future: Embracing Sustainable Construction Practices

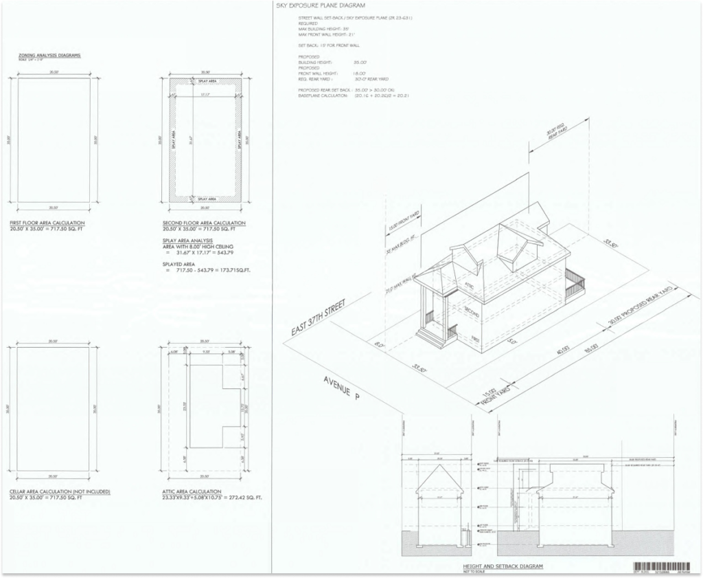
3614 Ave. Pl.

1,707 S.F.

New Buiding

2 Stories
Attic

D. U.

2

Build with us

We provide solutions to fit all your needs